The Highbury Floor Plan

The Highbury offers studios, 1 to 4 bedroom apartments and duplex penthouses with modern designs developed by Ellington Properties in MBR City, promising a luxury living experience. Live in comfort and style, where every corner displays elegance and makes everyday life easy.

Swipe
Floor Plan Category Unit Type Floor Details Sizes Type
The Highbury First Floor show Layout Plan -First Floor On Request Apartment
The Highbury Penthouse show 4 Bedroom 4 Bedrooms + Maid Penthouse 5254.51 Sq Ft Penthouse
The Highbury Second Floor show Layout Plan -Second Floor On Request Apartment
The Highbury Studio show Studio -Studio 425.93 Sq Ft Apartment
The Highbury Third & Twelth Floor show Layout Plan - Third & Twelth Floor On Request Apartment
The Highbury Thirteenth & Twenty Floor show Layout Plan -Thirteenth & Twenty Floor On Request On Request Apartment
The Highbury Twenty Eight Floor show Layout Plan -Twenty Eight Floor On Request Apartment
The Highbury Twenty Fifth Floor show Layout Plan -Twenty Fifth Floor On Request Apartment
The Highbury Twenty First Floor show Layout Plan -Twenty First FloorOn Request Apartment
The Highbury Twenty Fourth Floor show Layout Plan -Twenty Fourth Floor On Request Apartment
The Highbury Twenty Nine Floor show Layout Plan -Twenty Nine Floor On Request Apartment
The Highbury Twenty Second Floor show Layout Plan -Twenty Second Floor On Request Apartment
The Highbury Twenty Seven Floor show Layout Plan -Twenty Seven Floor On Request Apartment
The Highbury Twenty Six Floor show Layout Plan -Twenty Six Floor On Request Apartment
The Highbury Twenty Third Floor show Layout Plan -Twenty Third Floor On Request Apartment
The Highbury Type A show 2 Bedroom 2 Bedrooms + Maid Type A 1205.13 Sq Ft Apartment
The Highbury Type A 1 Bedroom show 1 Bedroom -Type A 848.20 Sq Ft Apartment
The Highbury Type A 3 Bedroom + maid show 3 Bedroom 3 Bedrooms + Maid Type A 1720.93 Sq FtApartment
The Highbury Type A 4 Bedroom + maid show 4 Bedroom 4 Bedrooms + Maid Type A 3629.05 Sq Ft Apartment
The Highbury Type B 4 Bedroom + maid show 4 Bedroom 4 Bedrooms + Maid Type B 4037.87 Sq Ft Apartment
The Highbury Type B 1 Bedroom show 1 Bedroom -Type B 767.68 Sq Ft Apartment
The Highbury Type B 3 Bedroom + maid show 3 Bedroom 3 Bedrooms + Maid Type B 1561.74 Sq Ft Apartment
The Highbury Type C 2 Bedroom + maid show 2 Bedroom 2 Bedrooms + Maid Type C 1350.87 Sq Ft Apartment
The Highbury Type C 4 Bedroom + maids room show 4 Bedroom 4 Bedrooms + Maid Type C 3081.71 Sq Ft Apartment
The Highbury Type C 1 Bedroom show 1 Bedroom -Type C 905.99 Sq Ft Apartment
The Highbury Type C 3 Bedroom + maid room show 3 Bedroom 3 Bedrooms + Maid Type C 2011.89 Sq Ft Apartment
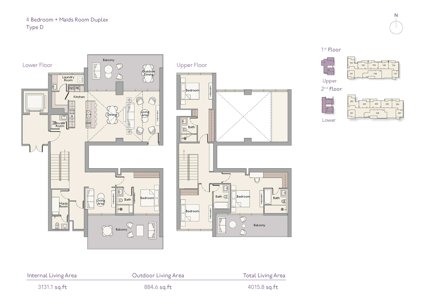
The Highbury Type D 4 Bedroom + maids room show 4 Bedroom 4 Bedrooms + Maid Type D 4015.80 Sq Ft Apartment
The Highbury Type D 1 Bedroom show 1 Bedroom -Type D 882.96 Sq Ft Apartment
The Highbury Type D 3 Bedroom + maid room show 3 Bedroom 3 Bedrooms + Maid Type D 2204.56 Sq Ft Apartment
The Highbury Type E 4 Bedroom + maids room show 4 Bedroom 4 Bedrooms + Maid Type E 4037.87 Sq Ft Apartment
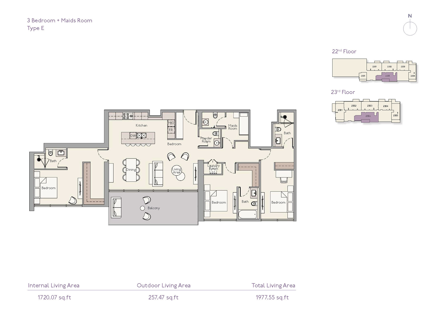
The Highbury Type E 3 Bedroom + maid room show 3 Bedroom 3 Bedrooms + Maid Type E 1977.55 Sq Ft Apartment
The Highbury Type E 2 Bedroom + maids room show 2 Bedroom 2 Bedrooms + MaidType E 1313.09 Sq Ft Apartment
The Highbury Type F 3 Bedroom + maid room show 3 Bedroom 3 Bedrooms + Maid Type F 2112.31 Sq Ft Apartment
The Highbury Type F 2 Bedroom + maids room show 2 Bedroom 2 Bedrooms + Maid Type F 1320.30 Sq Ft Apartment
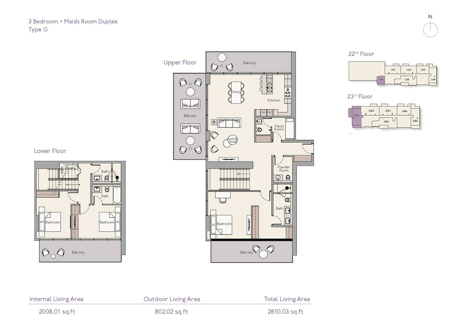
The Highbury Type G 3 Bedroom + maid room Duplex show 3 Bedroom 3 Bedrooms + Maid Type G 2810.03 Sq Ft Apartment
The Highbury Type H 2 Bedroom + maids room show 2 Bedroom 2 Bedrooms + Maid Type H 1730.19 Sq FtApartment
The Highbury Type I 2 Bedroom + maids room show 2 Bedroom 2 Bedrooms + Maid Type I 1311.37 Sq Ft Apartment
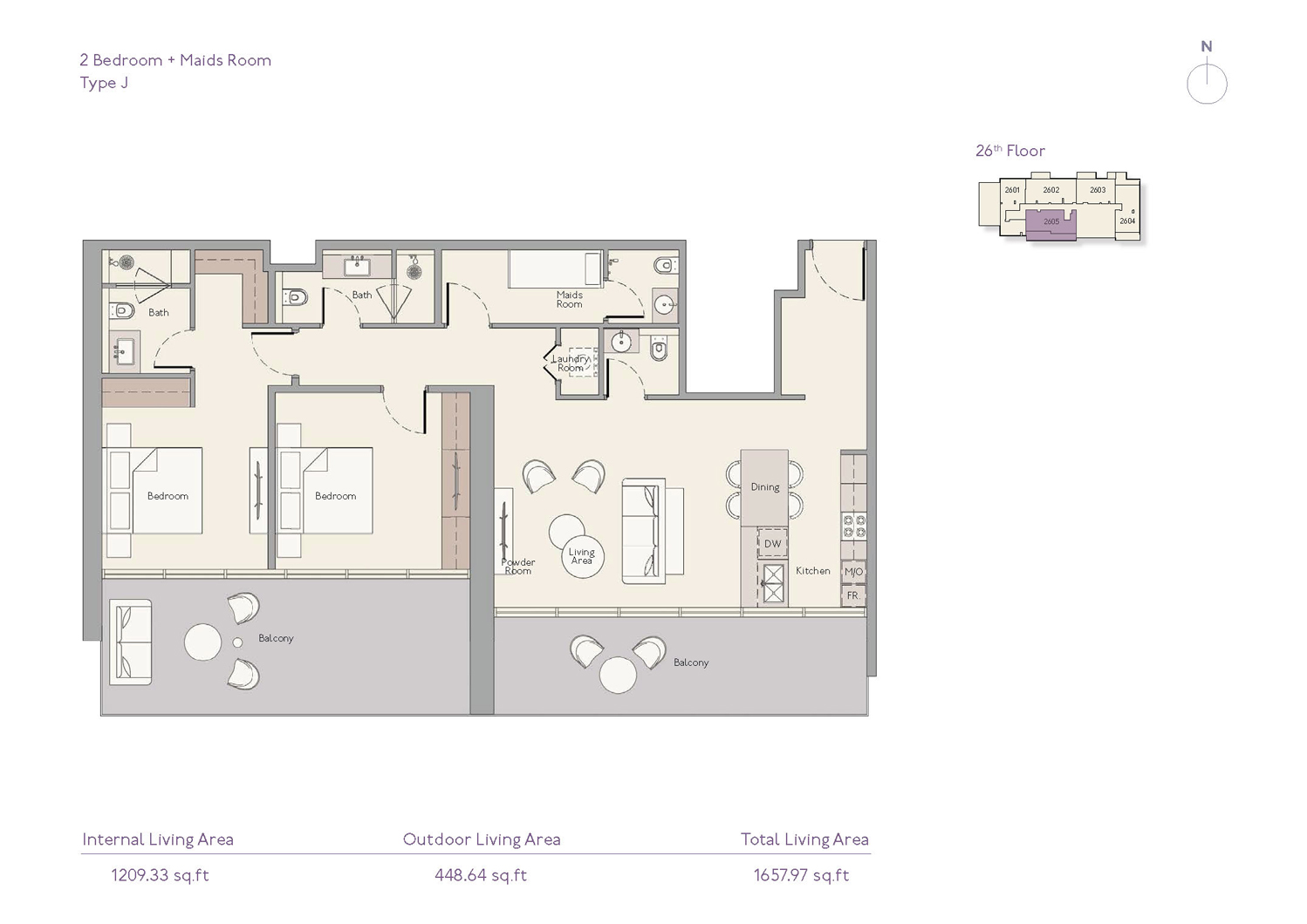
The Highbury Type J 2 Bedroom + maid room show 2 Bedroom 2 Bedrooms + Maid Type J 1657.97 Sq Ft Apartment
The Highbury Type K 2 Bedroom + maids room show 2 Bedroom 2 Bedrooms + Maid Type K 1219.33 Sq Ft Apartment

Prompt Consultation

Fill form below and our agent will contact you shortly